TBV and TBVH Series Trunnion Ball Valves
A trunnion ball valve is a type of quarter-turn valve that is widely used in various industries for controlling the flow of fluids. It is named after the trunnion, which is a fixed shaft or extension on which the ball is supported. The trunnion design provides stability and reduces the operating torque required to operate the valve.The main components of a trunnion ball valve include a hollow ball with a bore through its center, seats, stem, trunnion, and seals. The ball has a hole through which the fluid flows when the valve is open. The seats are located on either side of the ball and provide a tight seal when the valve is closed.The trunnion is a fixed shaft that supports the ball and helps to maintain its position. It absorbs the thrust generated by the pressure of the fluid, which allows the valve to handle high-pressure applications with ease. The stem connects to the ball and is used to rotate the ball to open or close the valve.Trunnion ball valves can be classified into two types based on the construction of the ball: floating ball and trunnion-mounted ball valves. In a floating ball valve, the ball is not fixed to the trunnion and relies on the pressure of the fluid to sit against the seals. In a trunnion-mounted ball valve, the ball is fixed to the trunnion, providing additional support and sealing capability.These trunnion ball valves are known for their excellent sealing properties, high flow capacity, and ability to handle high-pressure and high-temperature applications. They are commonly used in industries such as oil and gas, petrochemicals, power generation, and water treatment.Trunnion ball valves are available in various sizes, pressure ratings, and materials to suit different operating conditions. They can be operated manually or with the help of actuators for automated control. Additionally, they can be designed to accommodate different end connections, such as flanged, threaded, or welded ends.
![]() | ![]() |
| Item | Component | Valve Body Material | |
| 316 Stainless Steel | |||
| 2-way | 3-way | ||
| Material Grade/ASTM Specification | |||
| 1 | Handle | Nylon or Aluminium | |
| 2 | Panel Nut | 316SS/B783 | |
| 3 | Body | 316 SS/A479 | 316 5S/A182 |
| 4 | End Connector | 316 SS/A479 | |
| 5 | Seat Retainer Backup Ring | Reinforced PTFE | |
| 6 | Seat Retainer O-ring | Fluorocarbon FKM | |
| 7 | Seat Retainer Guide | 316 SS/A276 | |
| 8 | End Connector Seal | PTFE/D1710 | |
| 9 | Trunnion O-ring | Fluorocarbon FKM | — |
| 10 | Trunnion Backup Ring | Reinforced PTFE | — |
| 11 | Trunnion Bearing | — | PEEK |
| 12 | Ball | 316 SS/A276 | S21800/A276 |
| 13 | Seat Spring | Alloy X-750/AMS 5542 | |
| 14 | Seat Retainer | 316 SS/A276 | |
| 15 | Seat | PTFE or PEEK or PCTFE | |
| 16 | Stem | 316 SS/A276 | |
| 17 | Stem Washer | Reinforced PTFE | PEEK |
| 18 | Stem O-ring | Fluorocarbon FKM | |
| 19 | Secondary Stem Backup Ring | — | PTFE/D710 |
| 20 | Primary Stem Backup Ring | — | PEEK |
| 21 | Pin | Stainless Steel | |
| 22 | Set Screw | Stainless Steel | |
![]() | ![]() | ![]() |
| 3 Way Female Threaded Trunnion Ball Valves | 3 Way Double Ferrules Trunnion Ball Valves | Female Threaded Trunnion Ball Valves |

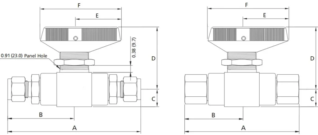
| Basic OrderingNumber | ConnectionType and Size | Orificein.(mm) | Cv | Dimension, in.(mm) | |||||
| A | B | C | D | E | F | ||||
| -TB-FN2-5 | 1/8 Female NPT | 0.19(4.8) | 1.2 | 2.94(74.7) | 1.47(37.3) | 0.50(12.7) | 1.88(47.7) | 1.57(40.0) | 2.56(65.0) |
| -TB-FN4-5 | 1/4 Female NPT | 0.19(4.8) | 1.2 | 2.94(74.7) | 1.47(37.3) | 0.50(12.7) | 1.88(47.7) | 1.57(40.0) | 2.56(65.0) |
| -TB-FN6-7 | 3/8 Female NPT | 0.19(4.8) | 1.2 | 3.93(99.8) | 1.97(49.9) | 0.50(12.7) | 1.88(47.7) | 1.57(40.0) | 2.56(65.0) |
| -TB-FN8-9 | 1/2 Female NPT | 0.19(4.8) | 1.2 | 4.25(108) | 2.13(54.0) | 0.50(12.7) | 1.88(47.7) | 1.57(40.0) | 2.56(65.0) |
| -TB-FT4-5 | 1/4 Tube | 0.19(4.8) | 1.2 | 4.09(103.8) | 2.04(51.9) | 0.50(12.7) | 1.88(47.7) | 1.57(40.0) | 2.56(65.0) |
| -TB-FT6-5 | 3/8 Tube | 0.19(4.8) | 1.2 | 4.25(108) | 2.13(54.0) | 0.50(12.7) | 1.88(47.7) | 1.57(40.0) | 2.56(65.0) |
| -TB-FT8-5 | 1/2 Tube | 0.19(4.8) | 1.2 | 4.60(116.8) | 2.30(58.4) | 0.50(12.7) | 1.88(47.7) | 1.57(40.0) | 2.56(65.0) |
| -TB-MT4-5 | 6mm Tube | 0.19(4.8) | 1.2 | 4.09(103.8) | 2.04(51.9) | 0.50(12.7) | 1.88(47.7) | 1.57(40.0) | 2.56(65.0) |
| -TB-MT8-5 | 8mm Tube | 0.19(4.8) | 1.2 | 4.14(105.2) | 2.07(52.6) | 0.50(12.7) | 1.88(47.7) | 1.57(40.0) | 2.56(65.0) |
| -TB-MT10-5 | 10mm Tube | 0.19(4.8) | 1.2 | 4.25(108) | 2.13(54.0) | 0.50(12.7) | 1.88(47.7) | 1.57(40.0) | 2.56(65.0) |
| -TB-MT12-5 | 12mm Tube | ||||||||
Address
Luotuo Industrial Area, Zhenhai District, Ningbo City, China
Tel
