A slewing drive planetary gearbox is a type of gearbox used in various applications. It is designed to provide rotational movement and torque to different mechanisms. With its compact size and high performance, the RPR600DC slewing drive is an ideal replacement for Replacement of Brevini Riduttori. Here are five key features of the RPR600DC slewing drive:
The RPR600DC slewing drive has a high torque capacity, allowing it to handle heavy loads and provide efficient power transmission.
With precise gear design and high-quality manufacturing, the RPR600DC slewing drive offers accurate control and smooth operation.
Despite its high torque capacity, the RPR600DC slewing drive has a compact design, making it suitable for applications with limited space.
Constructed with robust materials and advanced engineering, the RPR600DC slewing drive is built to withstand harsh environments and ensure long-lasting performance.
The RPR600DC slewing drive is designed for easy installation and integration into different systems, saving time and effort during the replacement process.

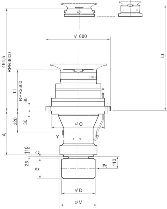
Our RPR600DC slewing drive offers the same installation dimensions as Replacement of Brevini Riduttori, ensuring high comparability in performance parameters. This makes it an ideal replacement for Replacement of Brevini Riduttori, even though we do not sell their products. Please refer to the following image for the comparison:

The RPR600DC slewing drive planetary gearbox finds its applications in various scenarios:
In solar tracking systems, the slewing drive is installed to rotate solar panels for optimal sunlight exposure throughout the day.
Construction machinery such as cranes and excavators utilize slewing drives to enable smooth rotation and precise positioning.
Slewing drives play a crucial role in wind turbines by adjusting the orientation of the blades to maximize energy generation from wind power.
In industrial automation applications, slewing drives are used for rotating conveyor belts, robotic arms, and other moving components.
The aerospace and defense industries utilize slewing drives in satellite antennas, radar systems, and military equipment for precise movement control.
When replacing old slewing drive planetary gearboxes, it is essential to consider the following parameters:

1. Gear Ratio: The gear ratio determines the speed and torque output of the slewing drive. It should match the requirements of the system.
2. Mounting Dimensions: Ensure that the replacement slewing drive has the same dimensions for proper installation.
3. Load Capacity: Consider the maximum load capacity of the replacement slewing drive to ensure it can handle the intended application.
4. Efficiency: The efficiency of the slewing drive affects its power consumption and overall performance.
5. Operating Temperature Range: Verify that the replacement slewing drive can operate within the required temperature range to avoid damage.
Signs indicating the need for slewing drive replacement include:
Choose our company for all your slewing drive needs. We offer high-quality, reliable products and exceptional customer service. Join us in achieving success together!
Author: Miya
Address
Luotuo Industrial Area, Zhenhai District, Ningbo City, China
Tel
