




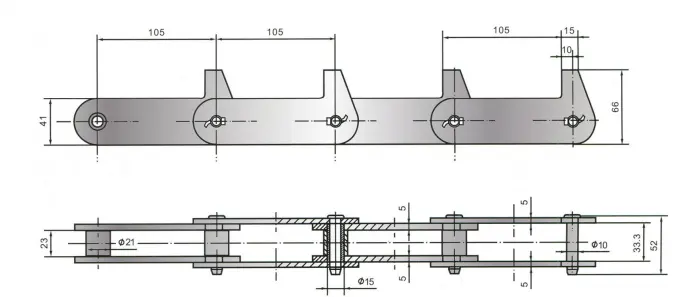
These specialized chains, with their engineered designs and durable materials, ensure smooth operations across various stages of the smelting process, enhancing overall production efficiency.
Address
Luotuo Industrial Area, Zhenhai District, Ningbo City, China
Tel
